READY EARLY 2025
Ashburton
Coming Early 2025
Register your interest
Ashburton Investment Opportunity
2x Lots Available
Price by negotiation
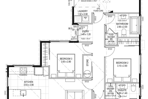
Presenting two new stand-alone 3-bedroom homes in Ashburton, brought to you by Frampton Construction. These homes offer a blend of classic Linea weatherboard style with modern amenities.
Key Features
- Master Bedroom with Ensuite
- Two Tiled Showers
- Stone Benchtop in a Designer Kitchen
- High-Quality Smeg Appliances
- Ducted Heat Pump for Year-Round Comfort
- Insulated Garage and Foundation
- Fully Landscaped Gardens
- Blinds Package Included
Enjoy contemporary living in a well-designed, comfortable home. Get in touch today!
